2023 에코-랜드 회의실 집기 비품 견적 입찰 안내 재공고
페이지 정보
작성자 관리자 작성일23-06-12 10:03 조회2,166회 댓글0건첨부파일
-
8-1회의실테이블 제안 요청서.hwp
(26.5K)
14회 다운로드
DATE : 2023-06-12 10:05:00
-
신청서.hwp
(18.0K)
10회 다운로드
DATE : 2023-06-12 10:20:01
본문
주민지원협의체 공고 제20230612-8호
회의실 집기 비품 견적 입찰 안내 재공고
에코-랜드 주민지원협의체 대회의실 집기 교체를 위해 가구업체를 선정하고자 다음과 같이 공고합니다.
1. 입찰에 부치는 사항
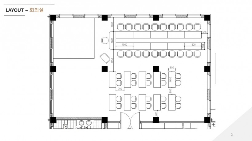
가. 사 업 명 : 에코-랜드 주민지원협의체 대회의실 집기 구입
나. 사업내용 : 제안요청서 참조
다. 사업예산 : 금이천오백만원정(25,000,000),부가세 포함
라. 입찰방법 : 제한경쟁입찰, 협상에 의한 체결(가격경쟁+제안서 평가)
마. 입찰공고 : 에코-랜드 주민지원협의체 홈페이지 및 별내면사무소 홈페이지
바. 품평회는 실시하지 아니하고 제안요청서 내용으로 평가
2. 제출서류
가. 입찰참가 신청서(2023.06.19.(월) 16시까지/직접제출)
1) 입찰이행보증보험증권(총 입찰금액의 3%이상)
※ 입찰보증보험증권 발급 관련 사업자 등록번호 안내(132-82-79872)
2) 사업자등록증, 법인등기부등본 각 1부
3) 법인인감증명서, 사용인감계 각 1부
4) 국세 및 지방세 완납증명서 각 1부
5) 4대보험 가입 증명원
6) 실적증명서
7) 서약서 1부
8) 청렴계약 이행 서약서 1부
9) 그 밖에 입찰에 필요한 서류
나. 제품 제안서 및 가격제안서 (203.06.19(월)16시까지)
1) 제품 이미지를 포함한 제품 제안서
2) 가격제안서
다. 입찰
1) 가격제안서
3. 계약방법 : 협상에 의한 계약
(지방자치단체를 당사자로 하는 계약에 관한 법률 시행령 제43조)
4. 입찰 참가자격
가. 국가를 당사자로 하는 계약에 관한 법률시행령 제12조(경쟁입찰의 참가자격) 및 동법 시행규칙 제14조(입찰참가자격요건의 증명)에 따른 자격 요건을 갖춘 사업자
나. 국가를 당사자로 하는 계약에 관한 법률 제27조(부정당업자의 입찰 참가자격 제한 등) 및 시행령 76조(부정당업자의 입찰 참가자격 제한)에 해당되지 않는 업체
다. 입찰공고일 현재 가구 도소매업 관련 사업자 등록을 필한 업체
라. 입찰공고일 현재 당좌거래정지, 청산, 합병, 매각 등 정리절차 중이거나 계획 중인 업체와 법원에 화의 또는 법정관리(신청 중 포함)중인 업체는 입찰에 참여할 수 없음.
마. 사업소재지가 경기도, 수도권에 소재하는 업체
5. 입찰일정 및 개찰일시
가. 공고 및 접수개시일시: 2023.06.12.(월) 09:00
나. 입찰 등록 및 제안서 제출기간 : 2023.06.19.(월)16시까지
다. 제 출 장 소 : 에코-랜드 주민지원협의체 사무실
라. 제안서 심사 : 2023.06.20.(화)
※ 서면평가를 기본으로 하되 업체PT심사가 필요한 경우 설명회 개최
※ 상기일정은 내부 사정에 따라 다소 변동될 수 있음.
마. 가 격 입 찰 : 제안서에 동봉한 견적서로 평가
바. 개 찰 장 소 : 주민지원협의체사무실 (에코-랜드 관리동 대회의실)
사. 제 출 방 법 : 에코-랜드 주민지원협의체 직접방문(직접제출, 우편제출불가)
아. 사업자선정 절차 : 입찰공고→제안서 및 가격입찰서 접수→심사(위원회)→사업자선정 및 계약체결
자. 낙찰자발표 : 개별통보 및 에코-랜드 주민지원협의체 홈페이지
(에코랜드주민지원협의체) 공고
6. 사업자 선정 방식
가. 제안요청서에 제시된 기준에 의거 위원회에서 평가한 후, 우선 협상 대상자를 선정하고 협상절차를 통하여 결정함.
나. 평가 방법, 기준, 절차등은 제안요청서 참조
7. 입찰무효
가. 국가를 당사자로 하는 계약에 관한 법률시행령 제39조(입찰서의 제출.접수 및 입찰의 무효) 및 객관적인 무효 사유가 있는 업체
나. 본 에코-랜드에 입찰 등록 구비서류를 제출하지 않은 업체
8. 입찰보증금 및 동 귀속
가. 입찰금액 3/100이상의 현금 또는 이행 보증보험 증권을 등록마감 일시까지 납부하여야 함.
나. 낙찰자가 협상이 성립된 후 10일 이내에 계약을 체결하지 아니할 때에는 입찰보증금은 본 에코-랜드에 귀속됨.
9. 하자담보책임기간 및 하자보증
가. 하자담보책임기간은 검수완료일 또는 그 이후로부터 1년으로 한다.
나. 하자보증금(하자이행보증보험)은 계약금액의 100분의 3이상에 해당하는 금액으로 하며 하자이행보증보험증권을 본 에코-랜드에 제출하여야 한다.
다. 하자담보책임기간 동안은 무상 A/S를 제공한다.
10. 기타사항
가. 입찰참가자는 공고문, 입찰제안요청서 등 입찰에 필요한 사항을 완전히 숙지하고 입찰
나. 제출된 서류의 허위사실이 발견되면 낙찰취소 및 입찰참가 자격을 제한
다. 입찰참가신청 및 제안서는 방문 제출(우편제출은 불가)해야 함
라. 제출된 제안서의 내용은 계약서에 명시하지 않더라도 계약서와 같은 효력을 가짐. 단, 계약서에 명시된 경우에는 계약서 사항이 우선
마. 우선협상대상자의 협상일시 및 장소는 제안서 평가 후에 별도 개별 통보하며, 미협상대상자에 대한 통보는 생략
바. 평가위원 명단, 평가결과 등은 공개하지 않음
본 입찰 계약은 주민지원협의체위원회와 체결 함
사. 제안요청서, 제안서, 계약서 등의 내용이 상이할 경우 및 사업자와 발주처의 내용 해석이 다를 경우 발주처의 해석을 따름
아. 낙찰자 결정 결과에 일체의 이의를 제기할 수 없으며 제출된 서류는 일체 반환하지 않음
자. 입찰 및 계약에 관한 사항은 담당부서(031-575-5831)으로 문의하시기 바람.
차. 기타 참고사항은 별내면행정타운, 에코랜드주민지원협의체
홈페이지에 확인하시기 바람.
2023년 6월 12일
에코-랜드 주민지원협의체 위원회


